reach out
A Sustainable Design Studio

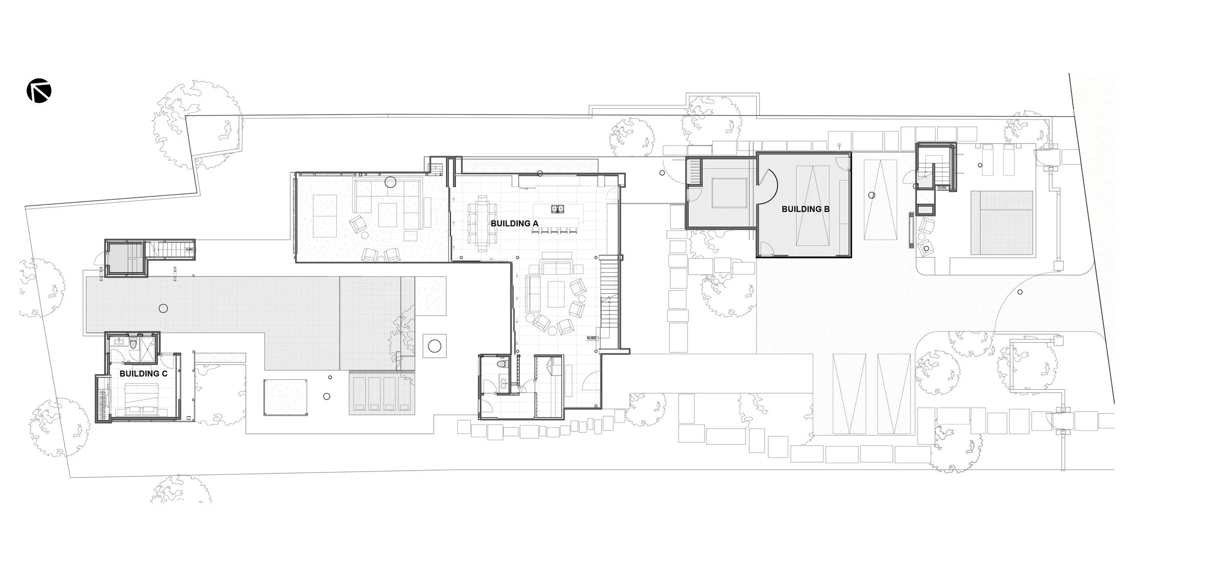
casa tres hermanas

casa tres hermanas

in the heart of Playa Guiones

Tres Hermanas is a house within a short walking distance to Playa Guiones. A structure designed to blend in with nature through an open layout, and a yoga deck with a view to the treetops.

 
 

typology: residential

scope: construction documents, site visits, work coordination

location: guiones, costa rica

status: completed

year: 2021

area: 805,57 m2

 
 
back to projects