reach out
A Sustainable Design Studio

outpost

outpost

ocean office concept

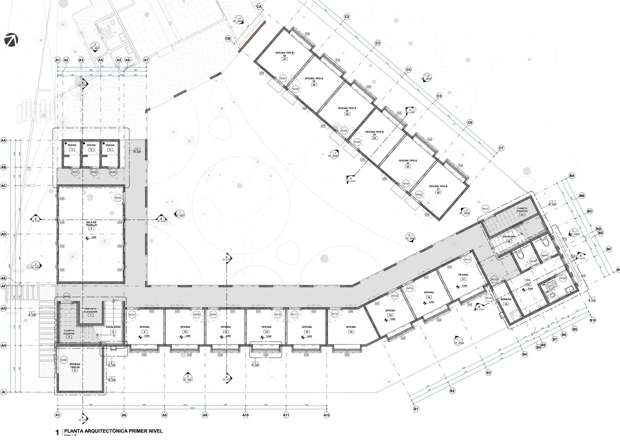
Outpost is a new take on offices with private areas and community work spaces immersed in Nosara’s local flora with high standards for wellbeing and conservation of natural resources. 

The architecture and design plays with the environment, making it a perfect space to work, rest after a surf session, watch the sunset and connect with other people.

typology: commercial

scope: preliminary studies, master plan, schematic design, construction documents, site visits, work coordination, sourcing, interior design

location: guiones, costa rica

status: completed

year: 2021

area: 989,01 m2

back to projects